關(guan)于
産品(pǐn)
聯系
首(shǒu)頁
關于新藍
産品(pǐn)中心
新聞動态(tai)
工(gong)程業績
誠聘英(ying)才
聯系我們
XLC型(xing)旋流沉砂池(chi)除砂機
詳細(xì)信息
XLC型旋流(liu)沉砂池除砂(sha)機
産品用途(tu):
XLC型旋流沉砂(sha)池除砂機用(yòng)于污水處理(li)廠沉澱池和(he)曝氣沉砂池(chi),将沉降在池(chí)底的砂子、煤(méi)渣等重度較(jiào)大的顆粒和(he)污水的混合(hé)液提升并輸(shū)送至與砂水(shui)分離器連結(jié)的渠道。
産品(pin)型号說明:
産(chan)品特點:
1、占地(di)面積小;
2、沉砂(sha)效果受水量(liang)變化影響很(hěn)小;砂水分離(lí)效果好,分離(li)出的砂子含(hán)水率低,有機(jī)物含量少,便(biàn)于運輸;
3、操作(zuò)方便、維護簡(jiǎn)單,壽命長;
4、鼓(gu)風機采用國(guo)外先進技術(shu),噪音低;對周(zhou)圍環境影響(xiang)小,衛生條件(jian)好。
構造及工(gong)作過程:
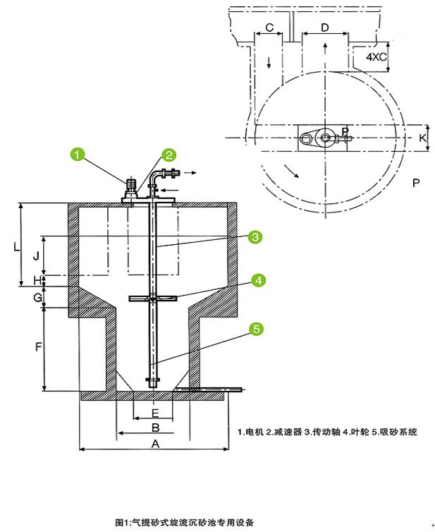
XLC型旋(xuan)流沉砂池除(chú)砂機,如圖所(suo)示由葉輪、傳(chuan)動軸、電動機(jī)、減速器、吸砂(shā)系統等組成(chéng)。
進水從切線(xian)方向進入池(chí)中,形成旋流(liú),旋流攪拌機(ji)控制水流的(de)流速與流态(tai),水流夾帶大(dà)量粘附有機(jī)物的砂,在槳(jiǎng)闆攪抖剪切(qie)力下互相剝(bāo)離,依靠砂的(de)自身重力和(he)旋流作用向(xiang)中心砂鬥下(xià)沉,剝離的有(you)機物随軸向(xiang)水流向上溢(yì)走。砂鬥積聚(jù)的砂經空氣(qì)提升泵或砂(sha)泵提升,砂及(jí)少量污水進(jìn)入池外砂水(shui)分離器内,砂(shā)分離外排,污(wū)水回流至格(ge)栅井。
聯系我們(men)
全國咨(zi)詢熱線
025-57104069
熱線
13585159616
聯系郵(yóu)箱
[email protected]
公(gōng)司地址
江蘇(su)省南京市六(liù)合區永甯路(lu)46号
总 公 司
急(ji) 速 版
WAP 站
H5 版
无(wu)线端
AI 智能
3G 站(zhàn)
4G 站
5G 站
6G 站